![]()
智能供粉系統配置遠程上位機,設備現場無需人員干預,操作人員位于中控室內進出操控。按使用要求,根據程序實現面粉、碎頭、雜糧等原料粉的自動混配及輸送、碎頭粉的回收、粉碎及輸送。同時系統具備高低料位提示、設備故障及初步診斷、生產數據及故障信息的紀錄及傳輸,大大降低了勞動強度,提高生產效率。
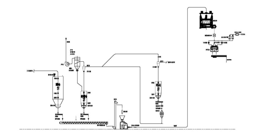
工藝流程:
![]()
通過正壓輸送管道從面粉廠粉罐區域輸送至掛面面粉倉內。車間配備1套5噸噸容量的面粉倉,用于暫存面粉。車間配備1個2噸容量的碎頭粉倉及1個2噸碎頭倉,各倉底部設置氣錘和絞龍,通過絞龍的轉動頻率控制供粉的流量(絞龍調試時需進行標定);所有絞龍匯集至1臺槳葉式混合絞龍內,在物料的輸送過程中實現混合。混合后的物料經過提升機,輸送至粉體壓松機進入減重稱,然后至和面鍋內備用。
主要單機:
①人工投料站——
特點介紹:
1)在風機抽氣狀態下,工作倉內腔獲得一定負壓,將投料時產生的粉塵吸入過濾器,避免外泄至箱體外。從而有效地避免了操作者與物料飛塵直接接觸,保護操作者身體健康。
2)震動篩放置在料倉內部,使震動篩工作時產生的粉塵被集中在料倉內部,便與風機吸入過濾器進行過濾。
3)風機底座與投料倉上部為法蘭螺栓快拆聯接,在更換濾芯時,要移開風機及風機座,在更換篩網或維護修理時,·好把風機及風機座從投料倉上部移開,以減少投料倉上部的重量,便于氣彈簧打開、安全可靠。
4)投料倉門設置氣彈簧汽開器,便于操作者開啟。倉門周邊都鑲嵌密封條,使粉塵不至飛出。在倉門關閉后,才可用反吹氣囊反吹。
5)離心風機:是整個除塵系統的動力元件,用來形成一定負壓,阻止粉塵外泄,并抽走篩分物料時彌漫的粉塵,方便設備操作。
6)震動電機:是整個下料篩選系統的動力元件,用來提供震動篩起震的激震力。
②脈沖除塵器——
脈沖除塵器技術參數 | ||||||
規格型號 | 濾袋長度mm | 處理風量m3/h | 過濾面積㎡ | 關風器電機功率kw | 刮板電機功率kw | 重量kg |
TBLM-26 | 1800 | 1032-5160 | 17.2 | 0.75 | 710 | |
2000 | 1150-5750 | 19.1 | 750 | |||
2400 | 1380-6950 | 23 | 790 | |||
TBLM-39 | 1800 | 1542-7700 | 25.7 | 1.1 | 1.5 | 1030 |
2000 | 1730-8650 | 28.7 | 1080 | |||
2400 | 2100-10400 | 34.7 | 1120 | |||
TBLM-52 | 1800 | 2120-10600 | 35 | 1230 | ||
2000 | 2300-10400 | 38 | 1500 | |||
2400 | 2770-11500 | 46 | 1700 | |||
TBLM-78 | 1800 | 3100-15500 | 52 | 1700 | ||
2000 | 3538-17200 | 57 | 1800 | |||
2400 | 4146-20750 | 69 | 2000 | |||
TBLM-104 | 1800 | 4116-20580 | 69 | 2200 | ||
2000 | 4600-22300 | 77 | 2500 | |||
2400 | 5500-27600 | 92 | 3000 | |||
TBLM-130 | 1800 | 5290-26500 | 88 | 2870 | ||
2000 | 5900-29670 | 99 | 3000 | |||
2400 | 7056-35280 | 118 | 3500 | |||
TBLM-168 | 1800 | 6836-34170 | 113.9 | 1.5*2 | 2.2 | 3500 |
2000 | 7596-37980 | 126.6 | 3700 | |||
2400 | 9110-45570 | 152 | 3900 | |||
③振動出倉器——
基本參數
規格型號 | 電機轉速(r/min) | 振幅(mm) | 功率(kw) | 重量(kg) | 外形尺寸(mm) |
TDXZ100*30 | 1430 | 0.8-3.2 | 0.37 | 220 | 1480*1260*530 |
TDXZ130*30 | 0.37 | 320 | 1780*1560*640 | ||
TDXZ130*50 | 0.37 | 300 | 1780*1560*560 | ||
TDXZ160*50 | 0.55 | 580 | 2080*1860*704 | ||
TDXZ200*50 | 0.55*2 | 850 | 2480*2260*895 |
④粉體壓送機——
![]()
![]()
![]()
